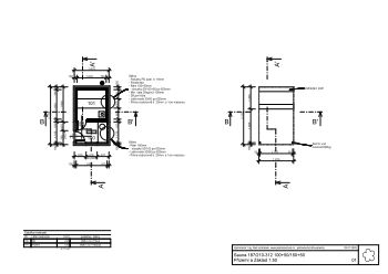
Sauna 187/210-312 100+50/150+50
Malá sauna pro dva s venkovním WC. Kce je 100/150, sauna zateplena na vnitřní straně doplňkovou vrstvou 50mm.
Parametry stavby
Rozměry rámů šířka/výška-délka 187/210-312cm Plocha zastavěná/užitná-objem 6,4/4,77m²-16,56m³ Tloušťka rámů stěna/strop, zateplení 100+50/150+50mm Základová konstrukce zakládací prahy, vruty Vnější povrchy fasáda - prkenná, krytina - folie Vnitřní povrchy stěny - palubky; podlaha - OSB + lino; strop - palubky
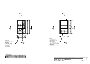
Náhledy listů






3D model stavby
3D model konstrukce