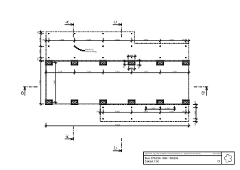
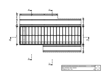
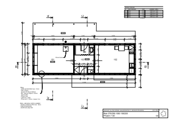
Blok 375/250-1250 150/200
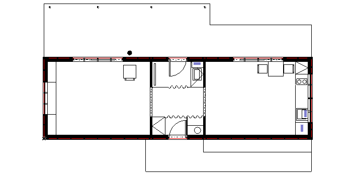
Základní jednopodlažní minimalistická kubická forma šířky 3,75m.
Je to takový zlatý střed. Konstrukčně jednoduché, ale poskytující už větší obytný prostor.
Parametry stavby
Rozměry rámů šířka/výška-délka 375/250-1250cm Plocha zastavěná/užitná-objem 46,8/41,4m²-140,4m³ Tloušťka rámů stěna/strop, zateplení 150/200mm Základová konstrukce betonové patky, ztracené bednění, terasa - vruty Vnější povrchy fasáda - prkenná, krytina - folie Vnitřní povrchy stěny - OSB, palubky; podlaha - OSB + lino; strop - SDK
Náhledy listů









3D model stavby
3D model konstrukce